Постановление (скачать)

от 22.10.2025 № 909-п
г. Тутаев
О подготовке проекта планировки
территории земельного участка с кадастровым
номером 76:15:021601:795, расположенного
по адресу: Ярославская область, Тутаевский район,
с/о Константиновский
В соответствии со статьями 43, 45 и 46 Градостроительного кодекса Российской Федерации, Федеральным законом № 131 – ФЗ от 06.10.2003 «Об общих принципах организации местного самоуправления в Российской Федерации», Постановлением Администрации Тутаевского муниципального района «Об утверждении административного регламента предоставления муниципальной услуги по принятию решений о подготовке, об утверждении документации по планировке территории» от 07.04.2021 № 314-п, на основании заявления Котяшева Т.А., Администрация Тутаевского муниципального района
ПОСТАНОВЛЯЕТ:
1. Разрешить Котяшеву Т.А. подготовку проекта планировки территории земельного участка с кадастровым номером 76:15:021601:795, расположенного по адресу: Ярославская область, Тутаевский район, с/о Константиновский, для комплексного освоения территории в целях малоэтажного жилищного строительства.
2. Утвердить задание на разработку документации по планировке территории земельного участка (Приложение 1) и задание на выполнение инженерных изысканий для подготовки документации по планировке территории земельного участка (Приложение 2).
3. Контроль за исполнением постановления возложить на Заместителя Главы Администрации Тутаевского муниципального района по градостроительным вопросам – начальника управления архитектуры и градостроительства Администрации Тутаевского муниципального района (главного архитектора) – Е.Н. Касьянову.
4. Постановление вступает в силу после его официального опубликования.
Глава Тутаевского
муниципального округа О.В. Низова
|
|
Приложение 1
Утверждено постановлением Администрации ТМР
от 22.10.2025 № 909-п |
|
|
|
Задание
на подготовку проекта планировки территории земельного участка
с кадастровым номером 76:15:021601:795, расположенного по адресу: Ярославская область, Тутаевский район, с/о Константиновский
|
Наименование позиции |
Содержание |
|
|
11 |
Вид разрабатываемой документации по планировке территории |
Проект планировки территории в виде отдельного документа |
|
22 |
Инициатор подготовки документации по планировке территории |
Котяшев Тимофей Александрович |
|
33 |
Источник финансирования работ по подготовке документации по планировке территории |
Личные средства |
|
44 |
Вид и наименование планируемого к размещению объекта капитального строительства, его основные характеристики |
- |
|
55 |
Муниципальный район (поселение), в отношении территории которого осуществляется подготовка документации по планировке территории |
Ярославская область, Тутаевский район, с/о Константиновский |
|
66 |
Состав документации по планировке территории |
В соответствии с требованиями Градостроительного кодекса Российской Федерации и положениями нормативных правовых актов Российской Федерации, определяющих требования к составу и содержанию проектов планировки территории |
|
27 |
Материалы, предоставляемые Администрации ТМР |
По результатам выполнения работ Инициатор передает Администрации ТМР следующую документацию: 1. Проектную документацию в 2-х экземплярах в бумажном формате, а также в формате DWG, MC Word, PDF. 2. Инженерно-геодезические изыскания в формате DWG.
|
Приложение
к заданию на разработку
проектной документации
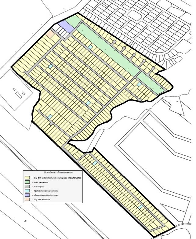
Схема границ разработки документации по планировке территории
Площадь участка проектирования 656 043 м2
|
|
Приложение 2
Утверждено постановлением Администрации ТМР
от 22.10.2025 № 909-п |
|
|
|
Задание
на выполнение инженерных изысканий
для подготовки документации по планировке территории
земельного участка с кадастровым номером 76:15:021601:795, расположенного по адресу: Ярославская область, Тутаевский район, с/о Константиновский
|
1. Наименование работ |
Инженерные изыскания, необходимые для подготовки документации по планировке территории |
|
2. Инициатор или лицо, принимающее решение о подготовке документации по планировке территории |
Котяшев Тимофей Александро |
|
3. Цель работы |
Выполнение инженерных изысканий для подготовки документации по планировке территории |
|
4. Основания выполнения работ |
Постановление Правительства РФ от 02.02.2024 № 112
|
|
5. Сведения об объекте инженерных изысканий |
Земельный участок с кадастровым номером 76:15:021601:795 |
|
6. Основные требования к результатам инженерных изысканий |
Технический отчет о выполнении инженерных изысканий, состоящих из текстовой и графической частей, а также приложений к нему в текстовой, графической, цифровой и иных формах. Материалы и результаты инженерно-геодезических изысканий представляются на бумажных и электронных носителях в формате, позволяющем обеспечить их размещение в информационных системах. Графические материалы и результаты инженерных изысканий представляются в формате векторной и (или) растровой модели. Информация в текстовой форме предоставляется в формате DOC. Информация в растровой модели представляется в форматах TIFF, JPEG, и PDF. Информация в векторной модели представляется в формате DWG. |
|
7. Граница проведения инженерных изысканий |
Определяет исполнитель в соответствии со схемой расположения земельного участка. |
|
8. Виды инженерных изысканий |
1. При подготовке документации по планировке территории необходимо выполнить следующие виды инженерных изысканий: инженерно-геодезические изыскания. Необходимость и достаточность материалов инженерных изысканий определяется инициатором в соответствии с пунктами 2, 4 Постановления Правительства РФ от 31.03.2017 № 402. 2. В составе инженерно-геодезических изысканий должны быть выполнены: создание опорных геодезических сетей; геодезические наблюдения за деформациями и осадками зданий и сооружений, движениями земной поверхности и опасными природными процессами (при необходимости); создание и обновление инженерно-топографических планов; трассирование линейных объектов; создание топографической съемки в масштабе 1:500. |
|
9. Описание объекта планируемого размещения капитального строительства |
Индивидуальное жилищное строительство |